Remodeling and expansion of a residence built in the 70’s located in Mexico City. The project rescued all the valuable architectonic details integrating them into a new contemporary proposal. The goal was to achieve a better relationship between the interior and exterior, as well as a better use of the space.
Elegance, functionality and grand inflows of light were the axis on which the new interior proposal was based. The main façade required the most privacy possible, compensated with the total opening of the back façade towards the garden to make the most of the views.
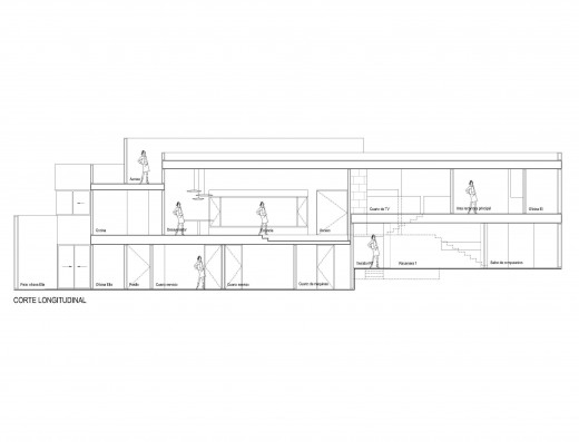
The program was solved in different levels. The public areas are located in the main level, half a level above the master bedroom and a family room. Half level below are the secondary bedrooms sharing a separate living room. In the private areas was done the largest structural intervention, a court yard was closed to make the bedrooms bigger and to make a terrace in the master bedroom, that also has a fireplace and excellent views of the garden.
The result is a house with generous double height spaces and ample mid levels with a well defined design. All the spaces round up visually framing important works of art. The purity of the white color, the brightness of marble and limestone, and the dark wood tones balance the harmony achieved in and out doors. The garden has Zen details and a pond with fishes and plants.
The lighting was designed especially for each space while respecting the existing slab and trying to win the greatest height in the areas using only suspended lamps. It is fully automated with AMX and Lutron controls for audio and video distributed in all areas for comfort and adequate use of energy.

Project: CASA SAUCES
Location: México D.F.
Year: 2007
Construction: 575 m2Interior Design:
ARCO Arquitectura Contemporánea
Arq. José Lew Kirsch
Arq. Bernardo Lew KirschConstruction and site supervision:
ARCO Arquitectura ContemporáneaAssociates:
Arq. Olga Berezhnaya
Arq. Federico Teista
Arq. Leslye Gonzalez
Arq. Guillermo Martínez
Arq. Gilberto Prado
Arq. Pedro Feldman
Beatriz CanutoMaterials:
Marble, wood, glass, aluminum and steel.Furniture:
ARCO Arquitectura Contemporánea
Esrawe Diseño
Ezequiel Farca
ArtelineaKitchen: Olimpic
Photography: Jaime Navarro
Web: www.ar-co.com.mx

