Wood Residence in Montreal by Vives St-Laurent is a carefully orchestrated renovation that embraces the existing character of a typical Westmount home while subtly introducing contemporary refinement. Designed by Philip Hazan of Vives St-Laurent, the project demonstrates how preservation and modernization can coexist without unnecessary drama. Rather than reinventing the house, Vives St-Laurent focuses on enhancing what was already there—an approach that feels almost rebellious in an era obsessed with overdesign.
Respecting the Original Framework
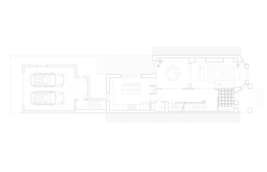
The renovation preserves the original layout, maintaining the staircase position and the classic sequence of living, dining, and kitchen spaces. This decision anchors the project in its historical context while allowing design interventions to feel intentional rather than forced. The entry sequence sets the tone immediately, where a checkerboard floor in Alpi Verde and Bianco Carrara marble introduces a timeless aesthetic that quietly bridges past and present.
The oval window—an iconic feature of the facade—becomes a design driver rather than a decorative afterthought. Custom entry furniture echoes its geometry, creating a subtle dialogue between architecture and interior elements. It is the kind of move that feels obvious only after someone thoughtful has already done it.
Living Spaces Defined by Light and Material
In the living room, built-in bookshelves frame the fireplace, transforming it into a deliberate focal point. The natural stone mantel is emphasized rather than overshadowed, proving that restraint can be more powerful than excess. A large bay window floods the space with daylight, reinforcing a connection to the exterior and highlighting the presence of a mature tree in the front yard.
The decision to replace the original flooring with pale-toned white oak introduces a modern softness without erasing the home’s identity. This material continuity extends throughout the house, ensuring that transitions between spaces feel cohesive rather than abrupt.
Subtle Interventions, Precise Details
The staircase becomes a quiet showcase of the project’s philosophy. The redesigned banister integrates traditional moldings with a recessed steel handrail, resulting in a hybrid detail that feels both familiar and contemporary. It is a small gesture, but one that reflects a broader commitment to precision.
Even secondary spaces are treated with care. A hidden powder room beneath the stairs demonstrates a seamless integration, with a concealed door aligning perfectly with surrounding moldings. Inside, a solid marble sink acts as both functional element and sculptural accent, subtly echoing the material language introduced at the entrance.
Kitchen and Private Spaces Reimagined
The kitchen remains in its original position, resisting the common temptation to reorganize everything for the sake of novelty. Instead, Vives St-Laurent enhances it through material contrast and improved functionality. An anthracite French door connects the interior to the terrace, while a marble countertop and central island reinforce both practicality and elegance.
Upstairs, the master suite becomes the defining feature of the private quarters. A spacious ensuite bathroom, inspired by boutique hotel design, introduces a sense of quiet luxury. Textured glass French doors balance privacy and light, while a generous vanity and walk-in shower complete a space that feels refined without trying too hard.
Ultimately, Wood Residence reflects Vives St-Laurent’s ability to work with what exists rather than against it. By carefully aligning design intent with execution, Vives St-Laurent delivers a renovation that feels coherent, measured, and quietly confident—qualities that tend to age much better than whatever trend is currently screaming for attention.
| Technical Sheet | |
|---|---|
| Project Name | Wood Residence |
| Firm | Vives St-Laurent |
| Architect | Philip Hazan |
| Contractor | Modulor |
| Cabinetmaker | Loeven Morcel |
| Location | Westmount, Montreal, Quebec, Canada |
| Area | 2,800 sq. ft. |
| Year | 2025 |
| Photographer | Alex Lesage |
| Map | https://maps.google.com/?q=Westmount,Montreal,Canada |














