schmidt hammer lassen architects to design a 188 meter office tower in Warsaw.
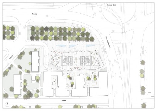
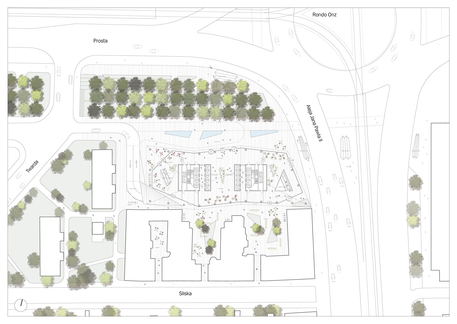
schmidt hammer lassen architects has won the international architectural competition to design a 188 meter office tower in the financial district of central Warsaw, Poland. The 60,000 m2 high-rise building is to replace the existing ‘Ilmet’ building and will stand out as a modern landmark clearly identifiable in the Warsaw skyline by its unique elegant shape and appearance.
“The object of the competition was to design an office tower that will be a new landmark in the Warsaw skyline while at the same time capturing the full potential of the outstanding historic location,” said Founding Partner of schmidt hammer lassen architects, Mr John Lassen.
The building consists of three individually stepped rectangular volumes with increasing heights towards the east. The façades create a subtle rhythm in the cityscape by slightly shifting inwards and outwards, and the inclined rooflines preserve optimal light conditions for the adjacent buildings.
“The design of the building offers a spatial coherence between roof and street level”, said Mr Kim Holst Jensen, Partner of schmidt hammer lassen architects, and he continued: “The lobby at street level, with its spectacular shaped ceiling, corresponds with the sloping shapes of the rooftops, making the building perceive as a sculptural object.”
The open lobby allows the people of Warsaw to pass into and through the building, connecting the plaza and park in front of the building with the courtyards of the historical tenement houses to the south.
The building is designed to reduce energy consumption with the goal of qualifying for the highest levels of sustainability certifications as BREEAM Excellent or LEED Gold status. The modular façade system with floor to ceiling glass elements, provide high levels of transparency as well as full integration of sun shading and light reflection shutters. The sloped rooftops are equipped with photovoltaic cells and elements for harvesting rainwater. The total sustainability approach is a combination of intelligent building management and minimizing technical installations by using passive elements.
The Jury was impressed by the high quality and innovation evident in the urban, architectural and technical concepts of the winning design. The future building will offer a number of attractive public areas and serve to complement the project’s prominent setting, as well as the entire neighbourhood.
schmidt hammer lassen architects has extensive experience of designing office buildings. Earlier this year, The Crystal in Copenhagen, Denmark, an extension to the headquarters of financial institution Nykredit, opened and has already received the European Steel Design Award 2011 and a LEAF Award 2011 for Best Structural Design. Another example is Amazon Court in Prague, the Czech Republic, which incorporates a range of sustainable solutions resulting in a 50 per cent lower energy consumption than a standard office building and an approximately 65 per cent lower maintenance cost.
Facts
Architect
schmidt hammer lassen architectsClient
UBS Real Estate Kapitalanlagegesellschaft mbHArea
60,000 m2Competition
2011, 1st prize in restricted international competitionStatus
Construction period 2012-2016Engineer
ARUP
Web: shl.dk






















