Paradigm GmbH’s latest project, The Frame Residence, adds a striking presence to the residential landscape of Amman, Jordan. Tucked within the lively neighborhood of Dabouq, this modern sanctuary balances natural beauty with contemporary design, crafting a living experience that resonates with elegance and tranquility. The home’s layout and aesthetics explore the thoughtful intersections of light, texture, and form, creating a space that feels both rooted in nature and inspired by modern architectural sophistication.
A Luminous Heart: The Double-Volume Atrium
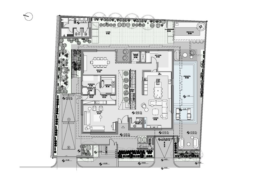
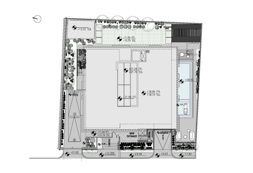
The central feature of The Frame Residence is its double-height atrium, an open, airy space that becomes the vibrant heart of the home. Crowned with a glazed roof, the atrium invites sunlight to pour into the interior, bathing rooms in an ambient glow that shifts throughout the day. This choice creates a rhythmic dance of light and shadow across the home, transforming the space into a living, breathing element of the house’s overall design. This atrium not only enhances the aesthetic appeal but also provides a gathering space filled with natural warmth, grounding the home in a serene, luminous atmosphere.
A Harmonious Fusion of Stone and Glass
From the outside, The Frame Residence captures attention with its unique facade, where natural stone is cut into triangular patterns to create a dynamic visual rhythm. This geometric treatment, inspired by the interplay of sunlight and shadow, lends the building a timeless yet modern feel. Large, panoramic windows framed in sleek metal extend from floor to ceiling, connecting the interior with the surrounding landscape. These views transform each room into a frame for the natural vistas, integrating the beauty of Jordan’s landscapes into the everyday life of the home. Balconies further extend this experience, providing outdoor spaces where residents can engage directly with their surroundings while maintaining the residence’s architectural style.
A Tranquil Palette and Natural Textures Inside
Stepping inside, The Frame Residence showcases a curated palette of natural materials that together create a harmonious ambiance. Wood panels, featuring warm and subtle textures, blend seamlessly with cooler stone elements, balancing the overall decor. The choice of muted grays and neutral tones cultivates a sense of calm, while the simplicity of the design invites quiet moments and reflection. This refined color scheme and material selection provide a timeless backdrop for living spaces, amplifying the natural light flowing in and ensuring the decor remains unobtrusive, allowing the home’s architectural form to shine.
A Thoughtful Synthesis of Form and Function
The Frame Residence goes beyond aesthetics, prioritizing comfort and functionality in its layout and finishes. Every aspect, from room proportions to the flow between spaces, has been considered to create an environment that serves as both a retreat and a welcoming residence. Under the guidance of designers Saja Nashashibi and Dana Samarneh, the project draws on collaborations with engineers and suppliers, including Delta Lighting and Innoval Lighting Solutions, to incorporate elements that enhance the experience of the home without overpowering its minimalist character.
Completed in 2023 with a budget of 2 million Jordanian Dinars, The Frame Residence reflects Paradigm DH’s approach to blending design with environment. Through this architectural venture, Paradigm DH demonstrates how simplicity and attention to natural forms and materials can yield a space that feels both contemporary and profoundly connected to its landscape. More than just a home, The Frame Residence offers its residents a curated environment in which modern life and nature find balance and harmony.
| Project Detail | Description |
|---|---|
| Official Project Name | The Frame |
| Location | Dabouq, Amman, Jordan |
| Client | Confidential |
| Architect/Designers | Saja Nashashibi, Dana Samarneh |
| Project Manager | Saja Nashashibi |
| Design Team | Dana Samarneh |
| Collaborators |
|
| Project Sector | Residential |
| Budget | 2 million Jordanian Dinars |
| Project Completion Date | 2023 |
| Photographer | Mohammad Masri |



























