Situed on a very small piece of land, the project has been enriched by the resistance from the site to the elements of the mission brief. First of all, this « family crèche » is a living space where the children thrive and a workplace for the staff. The building is the set for this environment in every aspects and needs but also in its poetical dimension.
The facility is seen as a cocoon sheltering the most fragile, it conjures up the idea of quietness behind a protection, the rigor and cleanliness reigns in this leisure space where the child starts his life in society. Introverted in appearence, the building is sheltered by a wooden shell – an envelope in the physical and symbolic meanings of the term. Considered as a skin protecting from the fast-paced world around, this envelope embodies the idea of a border between the everyday life and the warm and cosy environment of the « family crèche ».

The Brief
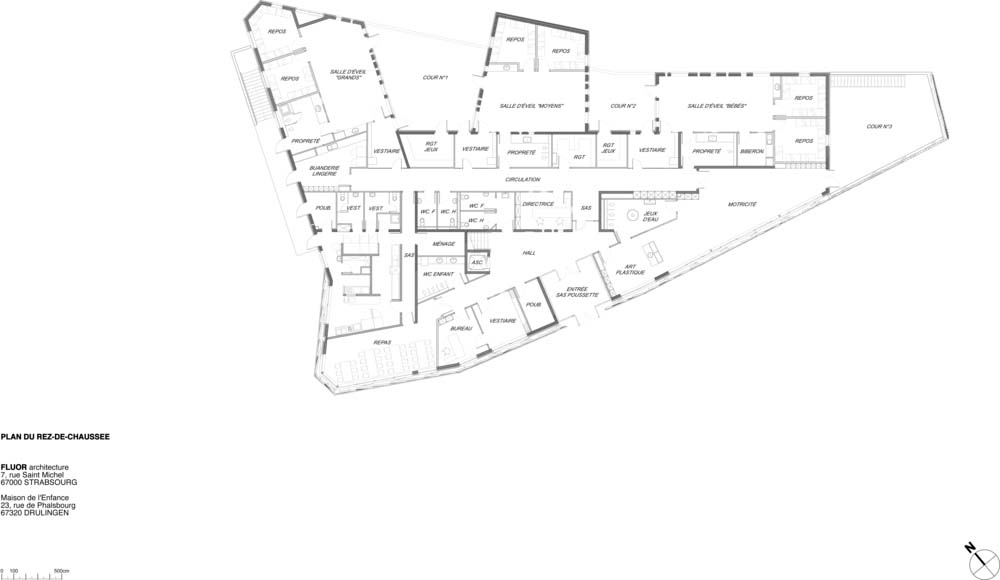
The construction of this « family crèche » gathers different entities: a « flexible attendance childcare centre » for 40 children, a drop-in centers for parents and children a childminder facility, childcare day center for 30 children as well as a kitchen for 100 meals (cooking finalized on site).
The mission includes the design of the exteriors (yard, green areas and car park).
The drop-off spaces and its surroundings are financed by the municipality (schedulded – end of 2010)
Site constraints
The shape of the plot is roughly triangular and very exiguous.
There is an existing police station on it (subsequently refurbished in offices and dwelling – not included in the mission).
The plot is located at the entrance to the town, bordering the local county road.

Construction system
The concrete frame (in-situ concrete walls and hollow-core slabs) is externally insulated to give an important thermal inertia which help maintaining a steady interior temperature.
Timber louvres on timber frame are linked to the facade by galvanized steel profiles.
Materials
Envelope : On the street, the siberian larch mesh and cladding (Silverwood) protects the external insulation in cellulose wadding. On the back, the external insulation is covered with a light colored render (STO).
All the flat roofs are planted. (Sopranature) exception made for the yard on the first floor which is covered with a waterproof concrete screed and surrounded by a fence with an uneven pace (Oobamboo of Normaclo).
The window frames in siberian larch or in painted pine are made by the carpenter in charge of the whole project.
On the inside : Studs and suspended acoustic ceilings are all in plasterboard (Placo), the floor heating system is covered with a rubber floor (Tarket). The sanitary equipments are provided by Villeroy and Bosch, the plugs and switches are from the german brand Jung. The chidren’s furniture has been selected from the Haba catalogue.
Energetic performance
Located in Alsace in north-eastern France, the project consumes 140kWhep/sqm/year (for a contextualised target of 156kWhep/sqm/year) hence a gain of 10 % compared to the current Energy Consumption Guidelines. The building can be considered « HEP High environmental performance » (which wasn’t a requirement and wasn’t budgetised by the client).
Web: www.fluor.fr
Source: v2com.biz




















































