In the year 2002, Promociones Mas Biohabitat embarked on a groundbreaking endeavor – the creation of an innovative sustainable housing project known as “Biohabitat Urbanization.” Set in the picturesque locale of Urbanización El Bosque, this architectural gem spans an impressive 3,480.35 square meters and comprises the first 27 dwellings of a larger visionary development. With a budget of 32,365,000 euros, the project aimed to revolutionize mass housing while prioritizing eco-friendliness and design excellence.
The Core Objectives
At the heart of the “Biohabitat Urbanization” project were two key objectives. The first was to conceptualize four prototypes of sustainable homes for mass promotion, measuring 157.70 m2, 178.05 m2, 204.90 m2, and 119.70 m2, respectively. Each prototype catered to different living needs while adhering to the overarching principles of sustainability.
The second objective was equally ambitious – to imbue the mass-produced housing typologies with a range of bioclimatic strategies, enhancing their environmental performance and fostering a healthier living environment, transcending the mere speculative requirements of conventional promoters.
The Architectural Solution
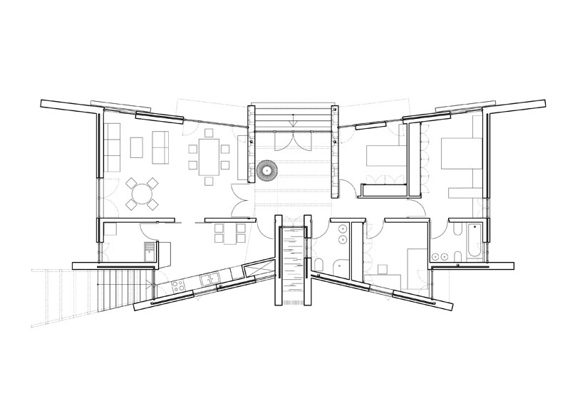
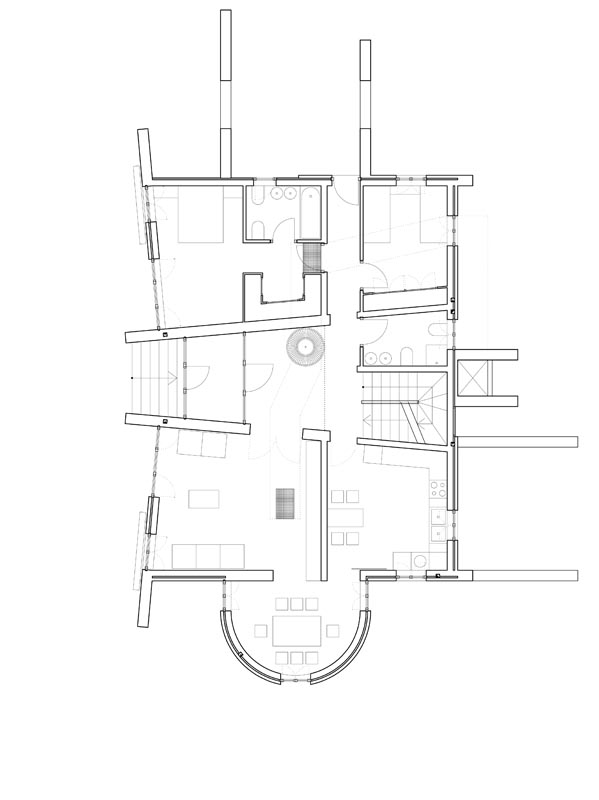
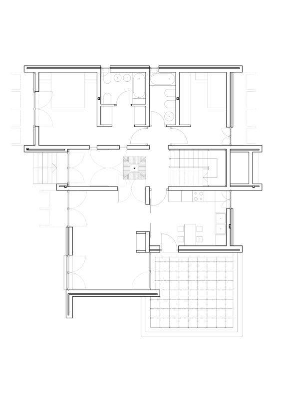
Situated within the picturesque landscape of Urbanización El Bosque, Valencia, the “Biohabitat Urbanization” comprises 27 residential units thoughtfully divided into four distinct typologies. These typologies are ingenious variations of a shared theme, with each dwelling meticulously designed around a central covered courtyard of double height.
This central patio serves as the architectural nucleus of each home, offering a multitude of benefits. During the colder months, the courtyard ingeniously traps and harnesses sunlight, allowing the living spaces to naturally warm up, reducing the need for additional heating. Conversely, in the scorching summers, this very design feature ensures the dwellings remain refreshingly cool, eliminating the need for excessive energy consumption on air conditioning.
Sustainable by Nature
The “Biohabitat Urbanization” project is a testament to eco-conscious living. The architectural design seamlessly integrates ecological, bioclimatic, and healthy living features, drawing inspiration from the proven success of single-family homes with similar attributes.
By incorporating sustainable principles into the core of a mass housing development, the project not only promotes responsible urbanization but also sets a pioneering precedent for future sustainable construction endeavors.
Architect and Visionary
At the helm of this revolutionary project is an architectural genius whose name is synonymous with innovative and sustainable design. With an illustrious career spanning decades, Luis de Garrido has consistently pushed the boundaries of architecture, demonstrating a deep understanding of nature and human habitation.
Guided by the principles of bioclimatic design, Luis de Garrido has succeeded in creating living spaces that harmonize with their environment, placing occupant well-being and ecological balance at the forefront. Through “Biohabitat Urbanization,” Luis de Garrido showcases their unwavering commitment to crafting spaces that foster a symbiotic relationship between humanity and nature.
Conclusion
Urbanización “Biohabitat” stands tall as an embodiment of sustainable living and architectural brilliance. Designed by the visionary
Luis de Garrido, the project effortlessly merges functionality, aesthetics, and eco-consciousness to redefine mass housing in Valencia.
As the world grapples with environmental challenges, “Biohabitat Urbanization” serves as an inspiring testament to what visionary architects and thoughtful design can achieve. It beckons a future where urban development coexists harmoniously with the natural world, setting a new standard for sustainable living and design for generations to come.























[…] hunian pertama dari proyek yang lebih besar dan visi masa depan. Dengan anggaran 32.365.000 euro, proyek ini bertujuan merevolusi perumahan massal sambil memprioritaskan ramah lingkungan dan keunggulan […]